Продажа коммерция (66 м²) с арендатором «Красное&Белое»
Санкт-Петербург
Продается коммерческое помещение 66 м² на первой линии. Санкт-Петербург, Бухарестская ул., 67, корп. 1.
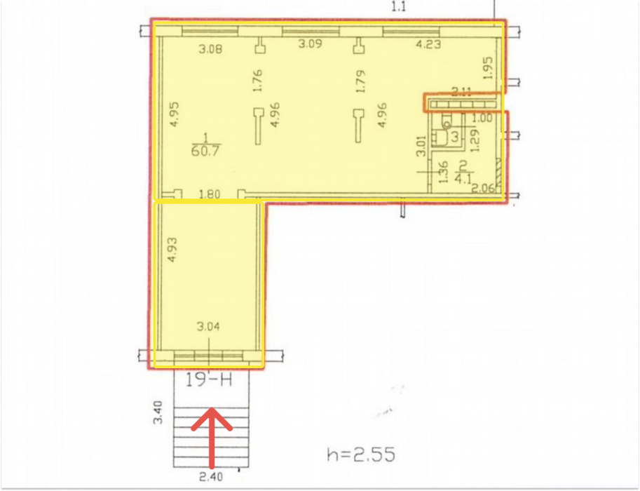
В продажу выставлен объект коммерческой недвижимости — помещение площадью 66 м², расположенное на 1 этаже с отдельным входом с улицы. Цена объекта составляет 18 500 000 рублей.
Основные параметры помещения:
Общая площадь: 66 м².
Этаж: первый.
Высота потолков: 2.6 м.
Отделка: офисная, помещение в эксплуатации.
Коммуникации: электрическая мощность 15 кВт, центральное отопление.
Парковка: бесплатная уличная (10 мест, включая места для грузового транспорта).
Ключевой фактор для инвестиционной привлекательности: Объект сдан в долгосрочную аренду федеральной сети «Красное&Белое». Действующий договор аренды заключен на 7 лет с ежегодной индексацией, что обеспечивает стабильность и прогнозируемость.
Преимущества местоположения:
Прямая пешая доступность от метро — 101 метр (суточный пассажиропоток станции составляет до 20 000 человек).
Развитая инфраструктура: в непосредственной близости расположены 2 торговых центра, гипермаркет, 10 точек питания, 41 пункт выдачи заказов и 10 аптек.
Отличная транспортная доступность: 15 остановок общественного транспорта с общим суточным трафиком 3 991 машина.
Обеспеченность парковочным пространством: в районе расположения объекта находится 2 011 парковочных мест (ближайшее в 17 метрах).
Высокий средний уровень доходов населения в округе.
Условия сделки: Продажа осуществляется напрямую от собственника (владение объектом более 3 лет), без комиссий.
Данное помещение представляет интерес для покупателя, рассматривающего недвижимость как готовый актив с действующим арендным договором и устойчивым арендатором в премиальной локации.
Полная документация, финансовые расчеты и просмотр доступны по запросу.
Контакты для связи: Алексей, брокер. Телефон: +7 (931) 977-70-07













