аренда от собственника ул. Парфёновская ул., 14к1 (61,5 м²)
Санкт-Петербург
Аренда торгового помещения 61.5 м² на 1 этаже от собственника без посредников в густозаселенном ЖК!
Выгодная локация для бизнеса: Сдаётся помещение 61.5 м² на первой линии в современном жилом комплексе по адресу: Санкт-Петербург, Адмиралтейский район, ул. Парфёновская, 14к1.
Ваше место для размещения бизнеса:
✅ Готовый трафик. Дом на 1084 квартиры в активно заселяемом районе гарантирует высокую проходимость. Рядом детский сад, новый бизнес-центр и сетевые магазины, что создает постоянный поток целевых клиентов.
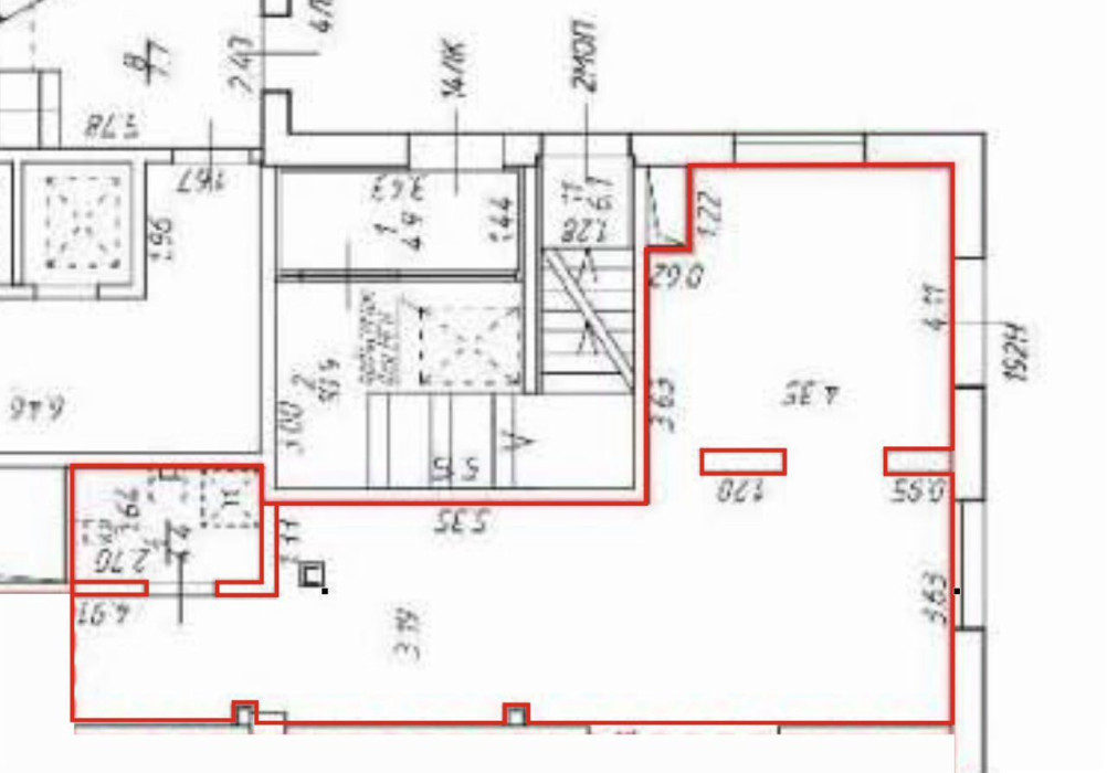
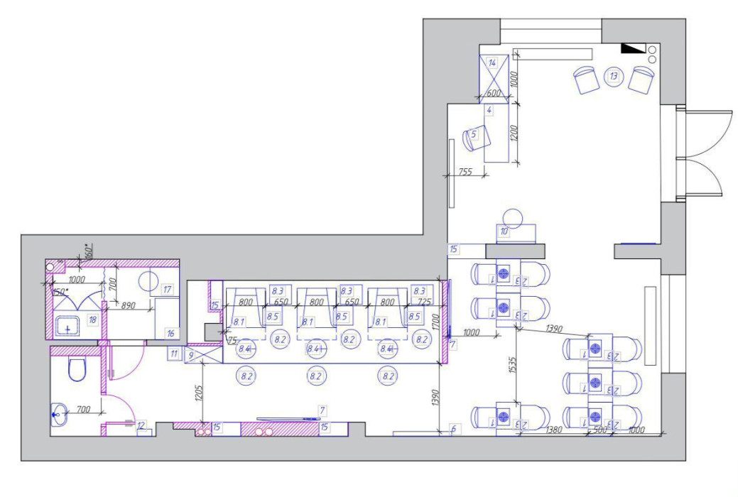
✅ Отличные условия. Помещение на 1 этаже 17-этажного дома с отдельным входом с улицы. Чистовая (офисная) отделка, высота потолков 3.0 м, электрическая мощность 15 кВт, центральное водоснабжение.
✅ Престижный район. Всего 10-15 минут пешком от станции метро «Балтийская», «Фрунзенская», «Московские ворота». Развитая инфраструктура, открытая парковка.
Описание объекта для аренды:
Тип: Торговое помещение в жилом здании.
Общая площадь: 61.5 м².
Арендная ставка: 160 000 ₽/месяц (2 602 ₽/м²/мес).
Субаренда: Нет.
Дата въезда: Помещение освобождается с 1 января 2026 года.
Почему стоит рассмотреть это помещение?
Это уникальное предложение в новом, густонаселенном микрорайоне. Вы получаете не просто стены, а готовую точку притяжения с высоким пешеходным трафиком. Отдельный вход и расположение на первой линии делают его идеальным для ритейла, услуг, общепита или офиса с клиентским потоком.
Идеально для предпринимателя, который ищет:
- Локацию с гарантированной проходимостью (1084 квартиры в доме + инфраструктура).
- Готовое помещение с качественным ремонтом и достаточной мощностью для бизнеса.
- Видимость и доступность (первая линия, отдельный вход).
Спрос на подобные помещения высокий — не упустите свой шанс занять лучшую точку в этой локации!
Звоните, чтобы договориться о просмотре и забронировать помещение!










